Beschreibung
Objektbeschreibung
Das Objekt, Baujahr 1996, ist verkehrsgünstig gelegen. Ein Platz, an dem früher Handschuhe produziert worden sind, steht heute ein Mehrfamilienhaus mit 46 Eigentumswohnungen und diversen Gewerbeeinheiten. Ein Platz, an dem man sich in Limbach trifft. Jede Wohnung verfügt über einen Balkon. Gebäude A und B sind komplett unterkellert. In dem größeren Bauteil befindet sich die Tiefgarage. Trockenräume und Fahrradräume sind vorhanden. Eine neue Heizung mit Brennwerttechnik sorgt für angemessene Heizkosten.
Ausstattung
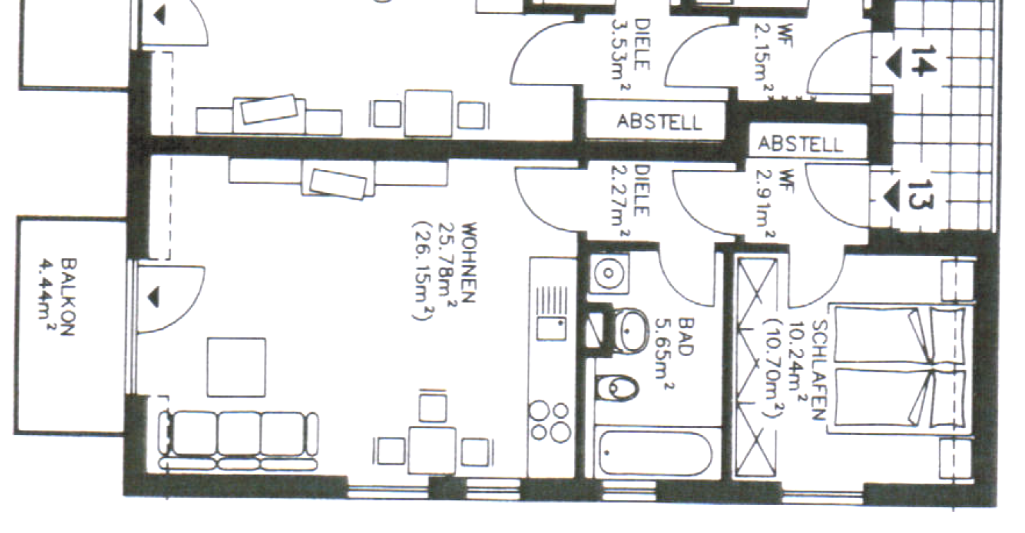
Wohnzimmer mit Balkon und reichlich Sonne. Die Küche ist unmittelbar am Wohnzimmer und sorgt für kurze Wege. Kinderzimmer und Schlafzimmer befinden sich auf der gegenüberliegenden Seite. Das Bad ist mit einem Fenster versehen. Alle Zimmer verfügen über Außenrollos. Die Wohnräume sind mit Laminat gelegt. Das Bad ist gefliest und verfügt über eine Badewanne. Wohnraum und Küche ist geöffnet. Die Wohnung überzeugt durch eine funktionale Aufteilung, einen Balkon sowie den zusätzlichen Komfort eines Tiefgaragenstellplatzes – ein klarer Vermietungsvorteil.
Lage
Direkte Nähe zu Chemnitz → Pendlerstandort
Sehr gute Verkehrsanbindung (A4 & A72 schnell erreichbar)
Mittelzentrum mit Infrastruktur (Einkauf, Ärzte, Schulen vor Ort)
Ruhiges Wohnen + Nähe zur Stadt = klassische Nachfragekombination
Natur & Freizeit: Parks, Radwege, Tierpark, Freizeitbad.
Die Stadt verbindet städtische Infrastruktur mit überschaubarem Wohnumfeld – genau das, was viele Mieter suchen. Eine Bushaltestelle befindet sich ca. 300m vom Gebäude entfernt.
Sonstiges
Die Informationen zum angebotenen Objekt wurden mit größter Sorgfalt zusammengestellt. Die Haftung für Berechnungen, Grundrisse, Texte, Richtigkeit und Vollständigkeit sowie Satz- und Druckfehler wird ausgeschlossen. Fehler sind jedoch menschlich und können vorkommen. Für Schäden, die dadurch verursacht werden, können wir, soweit wir nicht grob fahrlässig oder vorsätzlich gehandelt haben, keine Haftung übernehmen.










