Beschreibung
Objektbeschreibung
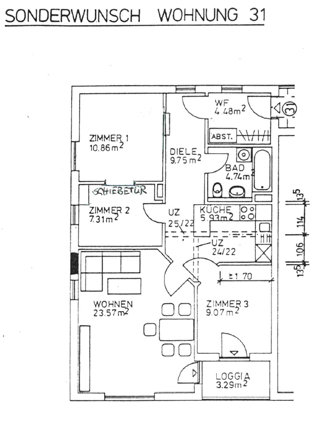
„Das Herz der Wohnung ist der Treffpunkt „offene Küche“. Das Wohnzimmer ist wunderbar hell, der angrenzende Balkon freut sich auf sonnige Abende bei Wein, Buch & Geschnatter.
Im Schlafzimmer träumst du nicht nur von der perfekten Welt, du wachst auch in dieser auf ;)! Ein kleiner Arbeitbereich für´s Homeoffice macht die Wohnung zur perfekten Traumwohnung.
Verkehrsgünstige Lage, aber weit genug weg, um am Wochenende ausschlafen zu können.
Die Wohnung könnte dein neues Abendteuer werden.
Ein Kennenlernen der Wohnung vereinbaren per Mail info@koschmieder.immo oder Whatsapp 0176-44487773.
Deine wirklichen Wünsche auszuleben muss nicht unbezahlbar sein!
Dort, wo einst Handschuhe produziert wurden, kannst du dein neues Leben
in die Hand nehmen. Das Objekt wurde 1996 neu errichtet. In der Nähe des
Objektes befinden sich gastronomische Einrichtungen, für den schnellen
Imbiss oder den unverhofften Besuch. Einkaufsmöglichkeiten und eine
Bushaltestelle befindet sich fußläufig.
Ausstattung
In der gesamten Wohnung wurde neues Laminat verlegt. Küche und Bad sind
gefliest. Die Küche ist zum Wohn -und Essbereich offen.
Der Balkon ist von zwei Seiten begehbar und lädt
wunderbar zum Kaffeetrinken ein, sobald die Sonnen scheint. Die Wohnung
hat eine komplette Ost-West-Ausrichtung. Sonne satt!
Zur Wohnung gehört ein großer Keller.
Lage
Das Objekt liegt verkehrsgünstig schnell erreichbar zu den Autobahnen A4 /
A72 und B 95 in Richtung Leipzig oder Erzgebirge.
Sonstiges
Hausmeisterdienst innen + außen wird erledigt und ist in Nebenkosten inbegriffen. Die Nebenkosten wurden nach der letzten Betriebskostenabrechnung der Mieter errechnet. Eine Besichtigung ist kurzfristig möglich.
Rufen Sie uns an: 03722-96785
Die Informationen zum angebotenen Objekt wurden mit größter Sorgfalt zusammengestellt. Die Haftung für
Berechnungen, Grundrisse, Texte, Richtigkeit und Vollständigkeit sowie Satz- und Druckfehler wird ausgeschlossen. Fehler sind jedoch menschlich und können vorkommen. Für Schäden, die dadurch verursacht werden, können wir, soweit wir nicht grob fahrlässig oder vorsätzlich gehandelt haben, keine
Haftung übernehmen.










